Book Tickets

4 Teviot Cottages

£775 pcm

icon
4 Teviot Cottages

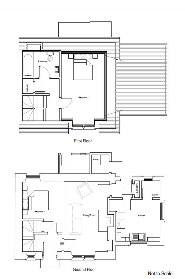
4 Teviot Cottages is a pretty end of terrace cottage situated in the quiet and tranquil village of Roxburgh giving a lovely rural feel but only minutes from the vibrant market town of Kelso. This property was completely renovated in 2024 including a brand-new kitchen, bathroom and stove.

This attractive cottage features a good sized double bedroom and family bathroom with shower over bath on the first floor, a sitting room with a multi fuel stove, good sized kitchen with pantry space, a second bedroom and front and back doors on the ground floor. This property benefits from oil central heating, double gazing, generous garden space to the front and rear of the property, shed/garage and off-road parking.

Photos of the property to be added shortly.

Available: 01/03/2026
Type: End of Terrace
Bedrooms: 2
Bathrooms: 1
Reception Rooms: 1
Garden: Yes
Furnished: Unfurnished
Pets: Considered
Flooring: Landlord is responsible for the flooring in the hallway, bathroom, kitchen, stairs and landing only
Heating: Oil
Water Supply: Private
Rent: £ 775.00
Deposit: £1550.00
Council Tax: B
EPC: D60
Landlord Registration: 31919/230/17341
Property Address: 4 Teviot Cottages, Roxburgh, Kelso, Roxburghshire, TD5 8LZ

Enquire